Вега 110 – это проект просторного двухэтажного дома с комфортной террасой и гаражом.
Дом отличается продуманной планировкой и современным дизайном.
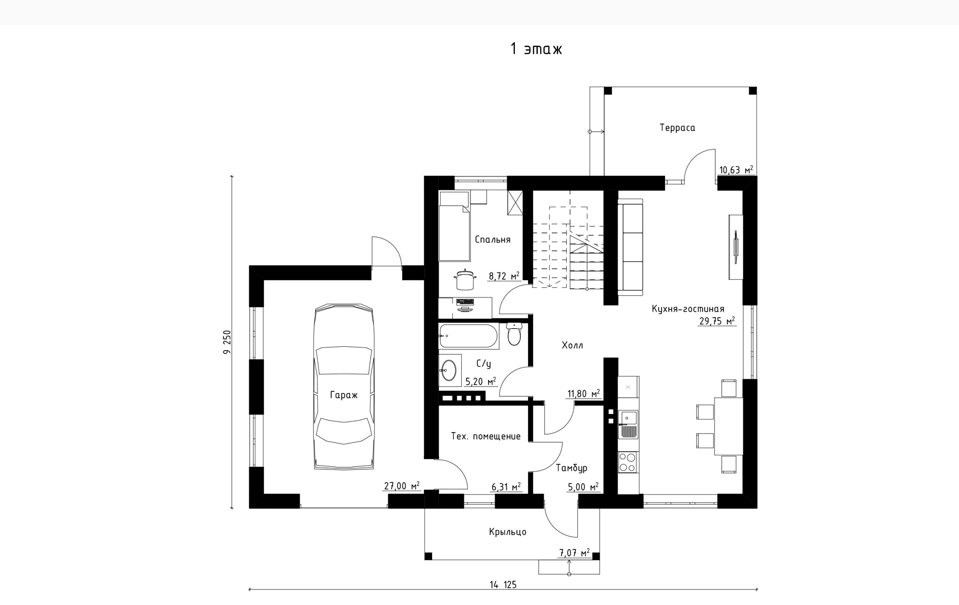
На первом этаже располагается функциональная и светлая зона кухни-гостиной, которая гармонично соединяет пространство для приготовления пищи и зону отдыха. Из этой комнаты удобно выйти на просторную террасу, где можно наслаждаться свежим воздухом и проводить время вместе со своей семьей или друзьями.
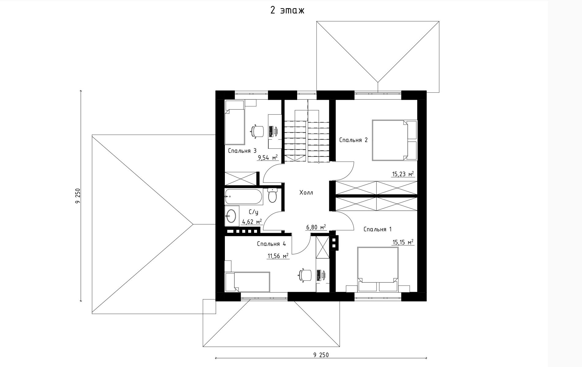
Второй этаж представляет собой приватное пространство, разделённое на несколько уютных комнат — здесь находятся спальни членов семьи. В этих помещениях вы сможете полностью расслабиться после рабочего дня и насладиться комфортом домашнего очага.
По проекту предусмотрен гараж, выходы в который находятся в техническом помещении и с улицы.
Таким образом, этот загородный дом предлагает идеальное сочетание комфорта, простора и удобства как для повседневной жизни, так и для проведения досуга всей семьёй.
Способы оплаты

Для оплаты (ввода реквизитов Вашей карты) Вы будете перенаправлены на платёжный шлюз ПАО СБЕРБАНК. Соединение с платёжным шлюзом и передача информации осуществляется в защищённом режиме с использованием протокола шифрования SSL. В случае если Ваш банк поддерживает технологию безопасного проведения интернет-платежей Verified By Visa, MasterCard SecureCode, MIR Accept, J-Secure для проведения платежа также может потребоваться ввод специального пароля.
Настоящий сайт поддерживает 256-битное шифрование. Конфиденциальность сообщаемой персональной информации обеспечивается ПАО СБЕРБАНК. Введённая информация не будет предоставлена третьим лицам за исключением случаев, предусмотренных законодательством РФ.
Проведение платежей по банковским картам осуществляется в строгом соответствии с требованиями платёжных систем МИР, Visa Int., MasterCard Europe Sprl, JCB.
Мы не передаем контактную и/или личную информацию наших Клиентов третьим лицам, если только это не предусмотрено законом РФ (Пользовательское соглашение).
Все работы по внесению изменений и корректировок в проект, а также подготовка комплекта проектной и сопроводительной документации к отправке, осуществляется после поступления оплаты на наш расчетный счет.
Процесс зачисления платежа через кассу банка может занять от 1 до 3-х рабочих дней, через Online-кабинет банка – от 1 рабочего дня. После поступления денег на расчетный счет Вы получите электронный кассовый чек на указанный вами e-mail (для физ. лиц).
Для ускорения процесса работы, пожалуйста, сообщите нам о факте оплаты – пришлите фото/скан квитанции об оплате на e-mail: vega-plan@mail.ru. Мы сразу же приступим к работе над Вашим проектом!
В течение одного рабочего дня с момента Вашего заказа мы свяжемся с Вами по указанному номеру для уточнения и обсуждения деталей выбранного проекта.
Сроки выполнения заказа:
После подтверждения факта платежа мы подготавливаем проект к отправке (если не нужны изменения), либо начинаем работы по внесению изменений в проект (при данной необходимости). Сроки исполнения заказа от 2 до 20 дней, не считая время на доставку. Сроки подготовки проектной документации оговариваются с заказчиком
Бесплатная доставка по РФ
После того как Вы подобрали подходящий проект из Каталога проектов,
мы подготовим всю нужную документацию и оперативно отправим курьерской доставкой. Доставка – бесплатна.
Мы подберем для Вас оптимальную по времени курьерскую доставку:
Мы работаем по всей стране и осуществляем доставку во все регионы и города России.
Выданный Заказчику выполненный готовый Проект на бумажном и/или техническом носителе не подлежит возврату и/или обмену на другой проект, как с доплатой, так и без доплаты в соответствии с п.14 Перечня непродовольственных товаров надлежащего качества, не подлежащих возврату или обмену на аналогичный товар других размера, формы, габарита, фасона, расцветки или комплектации, утвержденном постановлением Правительства Российской Федерации от 19 января 1998 г. № 55 (в ред. Постановления Правительства РФ от 06.02.2002 № 81).
В случае если у Заказчика, после приобретения Проекта, возникает необходимость его замены на другой и/или в случае возникновения необходимости внесения изменений в выполненный Проект, стороны письменно согласовывают новые сроки, стоимость и порядок выполнения данных работ.
В случае отказа от заказа до передачи выполненного готового Проекта Заказчику, возврат платежа производится по указанным при оплате реквизитам. Возврат переведённых средств при оплате банковскими картами, производится на банковский счёт Плательщика в течение 5-30 рабочих дней (срок зависит от банка, который выдал банковскую карту).